© Wade Ellison Design.
All rights reserved
web site by Design Diva
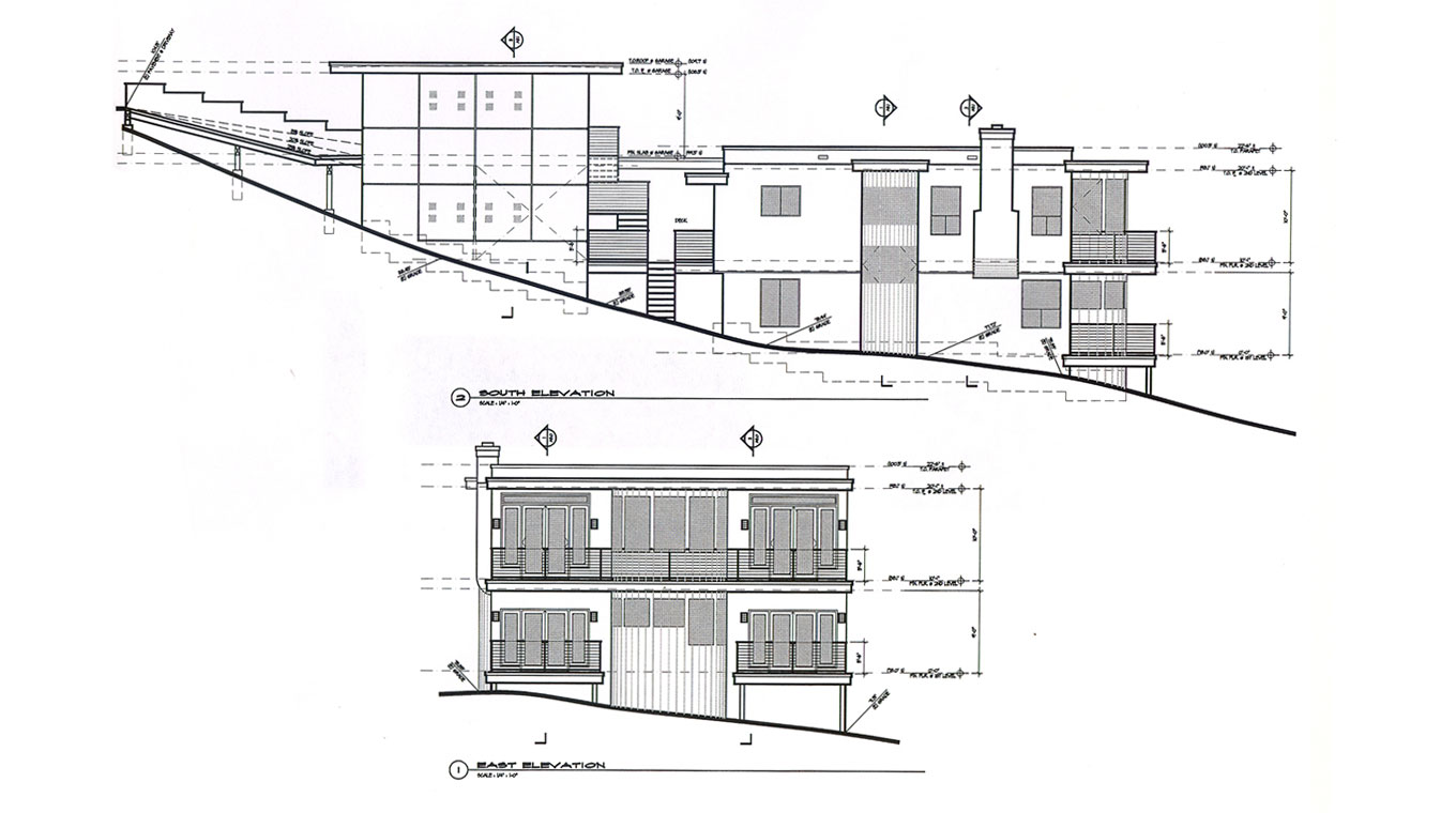
Custom Home Construction: 2010
3,000sq. ft. new 2-story custom hillside home.