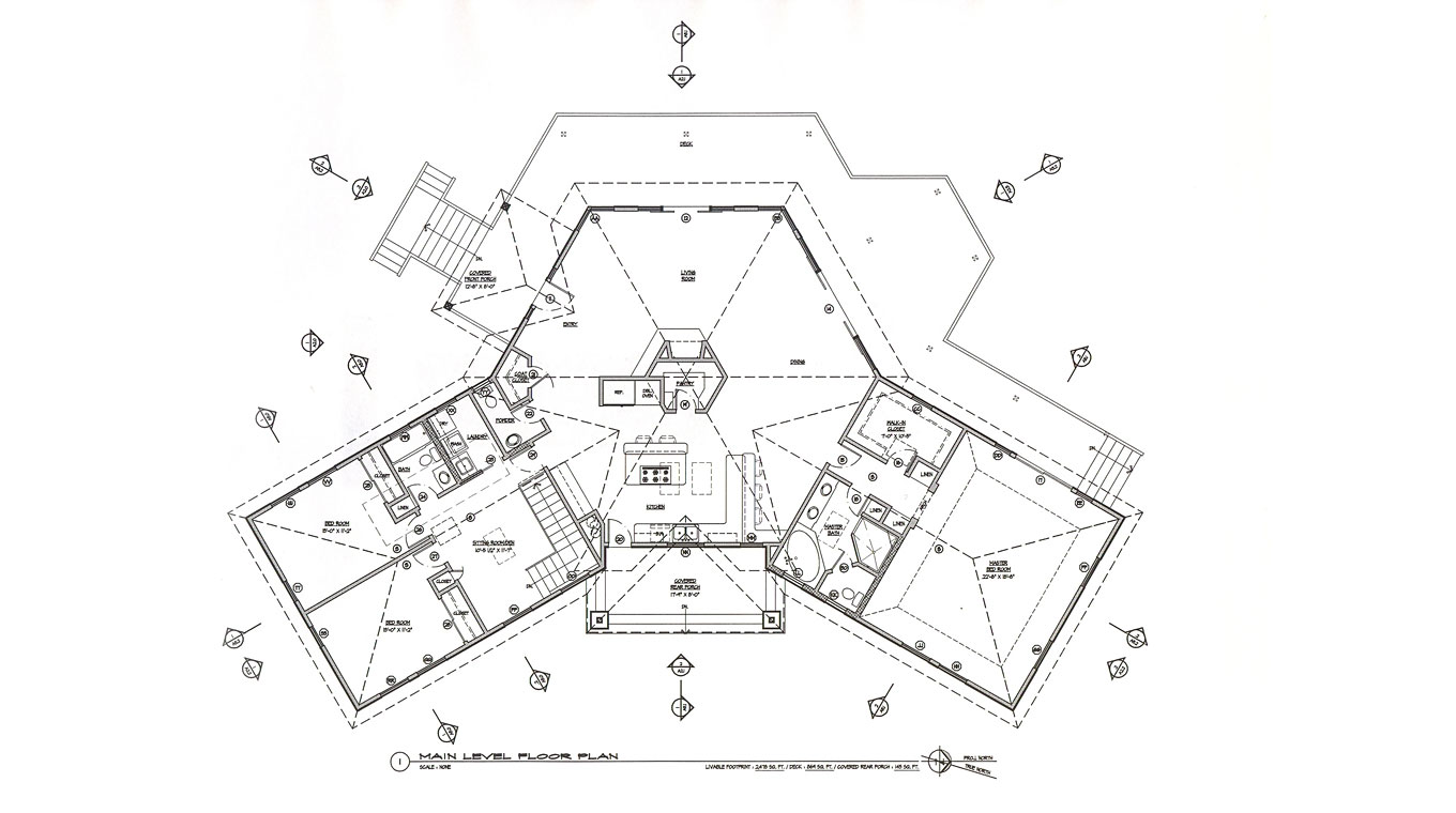
McKee Residence
A new 2,500sq. ft. 3 bedroom hillside residence was designed in 2007 with decks accessing the panoramic views of the Ojai Valley. The home situated above Villanova Road was engineered and approved by all required agencies, including County of Ventura Building & Safety Department, however, due to the economic recession this home was never built.
