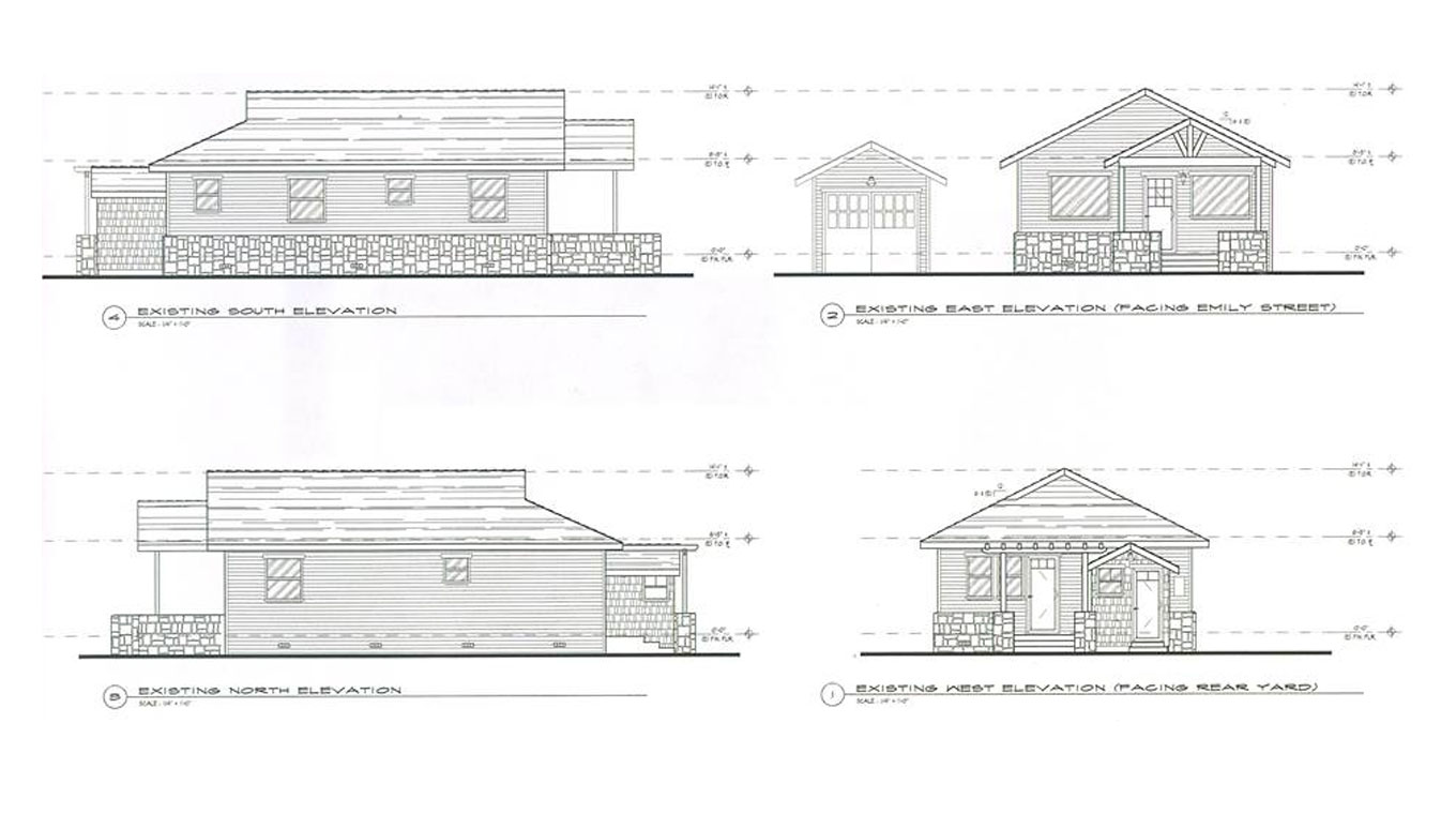
Turner Residence
The < 500sq. ft. addition to an existing 730sq. ft. single story residence proves that with effective planning and design you can get what you need without adding huge areas to your house while impacting your valuable yards. This residence is now a 3 bedroom/2 bathroom custom home, with a private master suite upstairs.

